Bồn cầu điện tử TOTO CS735DW16

TOTO
14,819,000₫ 18,100,000₫ ( -18% )
Số lượng
Liên hệ tư vấn và đặt hàng: 0836183226
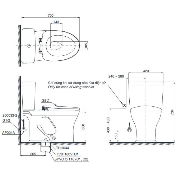
Kích thước (DxRxC): 700 x 420 x 734 mm. Tâm xả: 305 mm. Lượng nước xả: 4.8L/ 3L. Thiết kế: Thân dài, thân bán kín. Áp lực nước: 0.05 ~ 0.70 MPa. Nguồn điện: 220V, 50/60Hz. . Màu sắc Bồn cầu TOTO: Trắng. Nắp điện tử Washlet màu trắng. Bao gồm van khóa và gioăng đế nối sàn. Có bảng điều khiển từ xa (không dây) với 2 chế độ người dùng. Men sứ chống dính, chống bám bẩn CEFIONTECT. •Hệ thống xả xoáy Tornado siêu mạnh, siêu êm, tiết kiệm nước. •Công nghệ nước điện phân khử khuẩn Ewater+ (Phun tráng lòng bàn cầu và vệ sinh vòi rửa). •Vòi rửa massage đa chức năng, rửa sạch, êm ái. •Chế độ đưa bọt khí vào giọt nước. •Tự vệ sinh vòi rửa trước và sau khi sử dụng. •Sấy khô, khử mùi, sưởi ấm nắp ngồi. Thân cầu C735, Két nước: S735D sản xuất tại Việt Nam. Nắp rửa điện tử TCF23410AAA sản xuất tại Malaysia.
popup

Số lượng:

Tổng tiền: