Chậu đặt bàn Inax AL-445V (AL445V)

Inax
2,080,000₫ 2,670,000₫ ( -22% )
Số lượng
Liên hệ tư vấn và đặt hàng: 0836183226
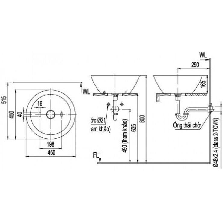
Depth 450mm Height 165mm Width 450mm. Chậu rửa đặt bàn AL-445V Kiểu dáng: Dạng đặt bàn sang trọng. Thiết kế: Nhỏ gọn, thanh nhã.
Chất liệu: Sứ cao cấp chuẩn Nhật với công nghệ AQUA CERAMIC chống bám bẩn cho men sứ 100 năm trắng sạch.
Lỗ xả tràn tiện lợi. Kích thước: 450x165x450. 
Không bao gồm phụ kiện ( vòi, bộ xả...)
popup

Số lượng:

Tổng tiền: